Разработка проектов производства работ ППР
Перечень выполняемых работ
Сроки разработки от 5 дней в зависимости от наличия полного пакета исходной документации и сложности проводимых работ.
Состав ППР: - пояснительная записка; - календарный план производства работ по объекту; - строительный генеральный план; - графические приложения;- график поступления на объект строительных конструкций, изделий, материалов и оборудования; - график движения трудовых ресурсов по объекту; - график движения основных строительных машин по объекту; - технологические карты на выполнение видов работ.
Сроки разработки от 3 дней в зависимости от наличия полного пакета исходной документации и сложности проводимых работ.
Состав ППР: - пояснительная записка ; - календарный план производства работ по объекту; - график движения трудовых ресурсов по объекту; - график движения основных строительных машин по объекту; - схемы производства работ; - технологические карты на выполнение видов работ.
Сроки разработки от 3 дней в зависимости от наличия полного пакета исходной документации и сложности проводимых работ.
Состав ППДР: - пояснительная записка; - календарный план или график производства работ по объекту; - строительный генеральный план; - графические приложения;- график движения трудовых ресурсов по объекту; - график движения основных строительных машин по объекту; - технологические карты.
План производства работ на высоте разрабатывается на выполнение работ при которых есть риск падения с высоты 1,8 м, при выполнении работ необходим подъем или спуск по лестнице высота которой превышает 5 м и угол наклона лестницы – больше 75 градусов.
Сроки разработки от 3 дней в зависимости от наличия полного пакета исходной документации и сложности проводимых работ.
Состав ППРв: - пояснительная записка; - календарный план или график производства работ по объекту; - строительный генеральный план;- графические приложения.
Технологическая карта состоит из следующих разделов: -общие требования; -организация и технология выполнения работ; -требования к качеству работ; -потребность в материально-технических ресурсах; -обеспечение пожарной безопасности; техника безопасности и охрана труда. Состав технологической карты может быть изменен в зависимости от специфики и сложности технологического процесса: сокращен или дополнен новыми разделами.
Сроки разработки от 1 дня в зависимости от наличия полного пакета исходной документации и сложности проводимых работ.
Строительный генеральный план включает в себя: -указание типа и конструкции ограждения строительной площадки; -схему размещения бытовых помещений строителей и мобильных (инвентарных) зданий с экспликацией; -схемы организации дорожного движения с указанием типов и конструкций внутриплощадочных дорог; -трассировку инженерных сетей снабжения, канализации, пожаротушения и освещения; -схему размещения складских площадей и помещений; -схемы привязки основных средств механизации; -указание опасных производственных зон и зон влияния строительных машин.
Сроки разработки от 1 дня в зависимости от наличия полного пакета исходной документации и сложности проводимых работ.
Примеры работ (схемы производства работ)
Схема устройства монолитных перекрытий
Схема монтажа плит перекрытия
Схема устройства монолитных стен
Стройгенплан
Схема демонтажа металлоконструкций емкости
Схема монтажа мачты
Стройгенплан
Стройгенплан
Стройгенплан
Стройгенплан
Схема устройства монолитных колонн и перекрытий здания
Схема устройства фундаментов здания
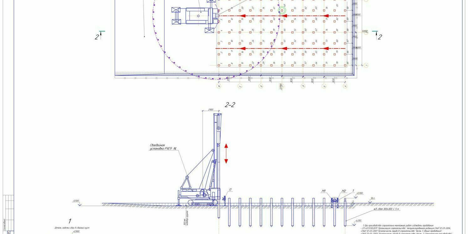
Схема устройства свайного поля
Схема устройства фундаментов здания
Схема монтажа металлоконструкций здания
Схема монтажа стен здания из сэндвич панелей
Схема монтажа кровли здания из сэндвич панелей
Схема устройства котлована под фундамент здания
Схема устройства фундаментов
График движения рабочих кадров по объекту
График движения основных строительных машин по объекту
Календарный план производства работ
Схема устройства свайного поля
Схема устройства фундаментов
Схема монтажа металлоконструкций
Схема монтажа металлоконструкций
Схема демонтажа блоков стены
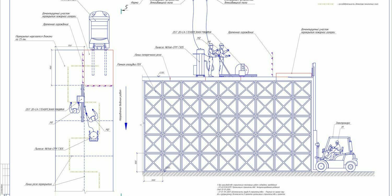
Схема демонтажа перекрытия
Схема демонтажа блоков стены
Схема демонтажа кирпичных пергородок
Схема утилизации мусора с этажа
Схема подъема материалов на этаж
Схема бетонирования колонны методом торкретирования
Схема бетонирования колонны
Схема монтажа металлоконструкций мостовым краном
Схема монтажа металлоконструкций мостовым краном
Схема обратной засыпки траншеи
Схема монтажа мачты МГФ-25
Стройгенплан, монтаж металлоконструкций силоса оперативного хранения зерна
Схема монтажа металлоконструкций силоса оперативного хранения зерна
Схема монтажа металлоконструкций силоса оперативного хранения зерна
Схема укладки кабеля
Схема монтажа блочного оборудования
Схема разгрузки и раскладки опор ВЛЗ-10 кВ
Схема бурения скважин (котлованов)
Схема установки одностоечных опор в готовый котлован
Схема демонтажа оборудования
Схема полосы отвода
Схема организации движения при устройстве временного примыкания к существующей автодороге
Стройгенплан, укладка плит на проездах
Схема укладки плит на проездах
Стройгенплан, демонтаж сооружений
Схема закрепления каната к металлической колонне перед демонтажем
Схема монтажа блочного оборудования
Схема размещения установки ННБ на площадке
Схема протаскивания рабочей плети в скважину
Схема протаскивания трубы ПНД в скважину пробуренную методом ННБ
Стройгенплан, демонтаж металлических емкостей
Схема демонтажа металлической емкости
Схема демонтажа здания
Схема демонтажа оборудования в здании
Стройгенплан, демонтаж колонны
Схема демонтажа колонны
Схема монтажа трубопроводов
Схема монтажа шарового крана
Стройгенплан, разработка котлована
Схема разработки котлована
Схема прокладки футляра методом ГНБ
Схема протаскивания рабочей плети в футляр








































































Выполненные работы
Образец разработанного проекта производства работ и технологической карты.
Размер файла: 4.56 мб
Проект производства работ разработан на монтаж наружного освещения.
Исходные данные

Необходимые исходные данные для разработки проекта производства работ в соответствии СП 48.13330.2019 "Организация строительства" :
- проект организации строительства (ПОС);
- необходимая рабочая документация;
- генеральный план;
- сроки производства работ;
- перечень строительной техники, которая будет задействована на объекте (марка).
Этапы разработки ППР
Исходные данные
Техническое задание
Сроки и стоимость
Договор
Разработка
Результат
Акт
В каком виде предоставляется ППР

Контактная информация
- +7 (918) 978-86-80
- info@projectppr.ru
- г. Краснодар, Казбекская, дом. 7












